La electricidad no se inventó, sino que se descubrió
Páginas
Inicio
📆 25/26
DRECT 2ª
DTIEL 2ª
INSOF
Proyecto IEA
ELCA 1ª
ELCA 2025
HTM
domingo, 1 de octubre de 2017
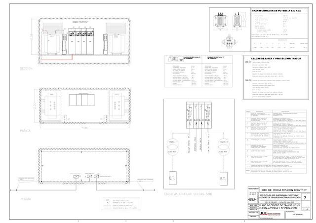
Detalles y planos de Centro de Transformación Prefabricados
No hay comentarios:
Publicar un comentario
Nota: solo los miembros de este blog pueden publicar comentarios.
Entrada más reciente
Entrada antigua
Inicio
Ver versión para móviles
Suscribirse a:
Enviar comentarios (Atom)
No hay comentarios:
Publicar un comentario
Nota: solo los miembros de este blog pueden publicar comentarios.